2016園冶杯參賽項目:辰興·優山美郡B地塊景觀設計
景觀設計理念
整體遵循“一園、雙街、九院”的規劃架構,及“和”的設計理念,升華詮釋B地塊景觀主題。延續中國傳統院落格局及中式園林中軸對稱的脈絡框架,形成本案南北均衡對稱的三進式院落景觀空間,運用現代造景設計手法打造高墻深院,顯赫門庭的景觀效果。通過對傅山文化的解讀,將其畢生傾心的琴、棋、書、畫作為元素,結合“和”的設計理念融入各院文化中,打造具有山西特色的社區文化景觀。
將“棋”文化融入慎和院,突顯貴乎嚴謹的博弈之道;將“琴”文化融入養和院,營造樂琴以消憂的雅致之境;書文化引入節和院,延續崇德尚禮的和諧空間;將“畫”文化融入雍和臺,打造以形寫神的典雅景觀。
設計元素運用寓意達官顯貴的拴馬樁;寓意富貴綿延不斷的回形紋;象征平安如意的如意結和代表水,象征財富之源,生命之源的瓦片,表達對東方精神、大院文化的追求。打造門為禮,庭為和,墻為序,巷為境,院為樂的五味晉園。
設計亮點
1、門戶系統:尊享典雅的入口設計、集中全面的公共會客廳、簡潔溫馨的入戶花園
2、功能系統:趣動健康步道、全齡性兒童活動場地、鄰里空間
3、種植系統:多層群落種植、增加觀花觀果植物、豐富微地形層次
4、人性化系統:非機動車存放點、寵物公廁
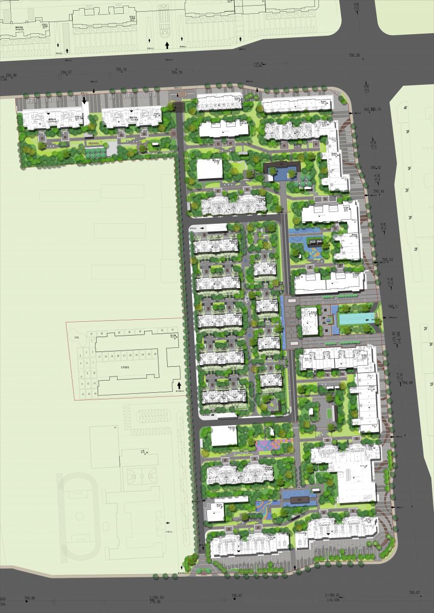
總體設計

總平面圖
景觀結構分析

景觀結構為“一堂、雙軸、肆庭”,即儀式性前堂——主入口商業活動區;東西向空間主軸,南北向核心景觀聯系軸;以及養和院、慎和院、節和院和雍和臺四個組團。
編輯:wanliyao
相關閱讀
探營廣州園博會:移步換景賞雅色 繡球簇擁廣州城
第30屆廣州園林博覽會將于3月24日至4月2日舉行,3月22日,記者提前探營廣州園博會多個會場花境,發現富有傳統和現代元素的造景、包含多個區域特色的小園圃等已逐漸展露真容【詳細】
天津第32屆運河桃花節舉辦
3月17日,第32屆天津運河桃花文化商貿旅游節如約而至。在北運河畔的桃花堤,微風輕拂,桃紅柳綠,人們三五成群地踏青、賞花,趕赴一場浪漫的春日之約【詳細】
海南大山泰景觀承建國家公園大門獲世界自然保護聯盟領導肯定...
在海南熱帶雨林國家公園五指山大門,陳俊霄向調研組匯報了國家公園大門(五指山)建設情況,章新勝對陳俊霄參與設計、海南大山泰景觀工程有限公司承建的國家公園大門(五指山)項目的創意主題【詳細】
海南首個園林式遺體器官捐獻者紀念園開園
三亞市遺體器官捐獻者紀念園坐落在三亞市荔枝溝路殯葬服務中心內、烈士紀念園旁,于2022年3月開工,2023年2月竣工,占地600余平方米,由三亞市人民政府投資建設【詳細】



