棕櫚園林中國園林博物館內仿建嶺南名園 展嶺南傳統園林文化
2013-05-24 09:03:00 來源:中國風景園林網 瀏覽次數:
滿洲窗

滿洲窗(仿建)

滿洲窗整體效果(仿建)

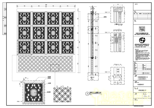
滿洲窗施工圖

滿洲窗施工圖
滿洲窗是嶺南園林建筑裝飾的另一顯著特色,是地域性與時代性的結合,深柳堂內的滿洲窗,在細密的六角形窗格中鑲嵌著進口藍白兩色玻璃,中央裝飾紅底白色花卉圖案,設計精美,室外陽光透過玻璃射入室內,使得光線強度減弱并產生一種冷峻的奇妙效果。
編輯:daiy
凡注明“風景園林網”的所有文章、項目案例等內容,版權歸屬本網,未經本網授權不得轉載、摘編或利用其它方式使用上述作品。已經本網授權者,應在授權范圍內使用,并注明“來源:風景園林網”。違反上述聲明者,本網將追究其相關法律責任。
相關閱讀
北京首發森林體驗指數
很多森林看起來大同小異,但因風速、濕度、負氧離子濃度等的不同,游憩的感受相差很大。到底哪片森林更適合您的出游需求呢?昨天,北京首次上線森林體驗指數,為市民走進自然踏青賞花提供參考【詳細】
“十四五”期間 四川力爭建成200個體育公園
通過重點推動體育公園建設、綠道建設等場地設施建設,充分利用城市金角銀邊建設便民利民的場地設施等手段,扎實推進健身場地設施補短板工作,完善四級全民健身設施體系,進一步滿足人民群眾15分鐘健身圈需求【詳細】
河北定州加快創建國家園林城市
定州把創建國家園林城市、籌辦河北省第七屆(定州)園林博覽會兩項工作做為彰顯特色、打造品牌的重要路徑,做為提升文化、惠及民生的重要載體,圍繞城市框架拉伸、文旅產業發展、人居環境提升、新興產業布局做文章【詳細】
探營廣州園博會:移步換景賞雅色 繡球簇擁廣州城
第30屆廣州園林博覽會將于3月24日至4月2日舉行,3月22日,記者提前探營廣州園博會多個會場花境,發現富有傳統和現代元素的造景、包含多個區域特色的小園圃等已逐漸展露真容【詳細】



